A password will be e-mailed to you
This semi-detached house is located in the neighborhood of Forest Hills, nestled on the hills of Sierra Bermeja and surrounded by lush vegetation and mountain air.
With a built area of 205m² spread over 3 floors and a 320m2 private garden, this property has an uncommon potential.
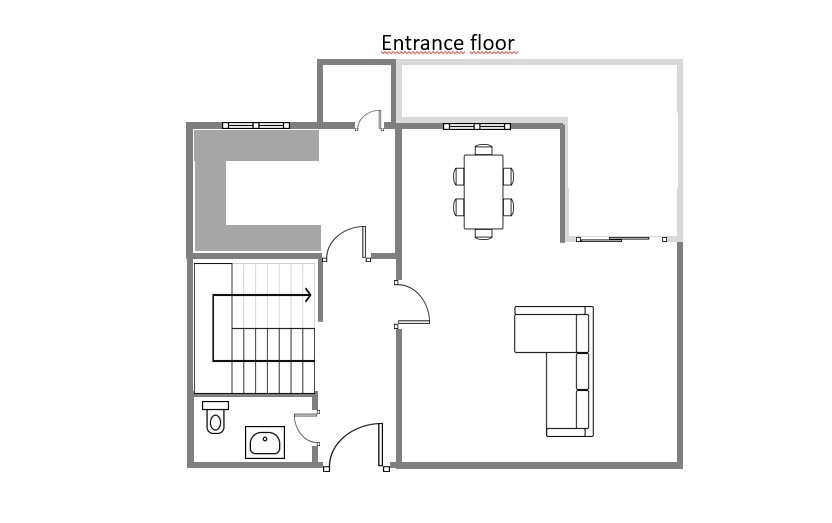
The street-level porch entrance is to the upper floor, where the spacious living room with a fireplace, the dining area, the kitchen, and a guest toilet are situated. This floor also offers a big terrace with panoramic views of the hills.
Downstairs, are displayed the 3 bedrooms with fitted wardrobes and 2 bathrooms. The master bedroom has an en-suite bathroom and access to another terrace with the same open views of the surrounding mountains and vegetation. On this floor, there is a utility room providing additional storage.
On the bottom level, we have a second storage room and a huge covered terrace equipped with an outdoor kitchen that is open to the big private garden. This terrace, currently used as a gym and play area, offers a unique opportunity to expand the indoor area of the house by closing it with glass curtains. The house is equipped with solar panels.
Additionally, the property has parking for 2 cars and 2 storage rooms one of which can be converted into an extra bedroom or office if desired. There is also a communal pool available for the residents.
With a mountainside setting in the area of Forest Hills, just next to Estepona Tenis and Padel Club, only 15 minutes away from Estepona town and 10 minutes away from the beach and the main motorway that will easily lead you to Marbella in 15 minutes or to Malaga in 40 minutes.
A password will be e-mailed to you
Use the form below to contact us!








































