A password will be e-mailed to you
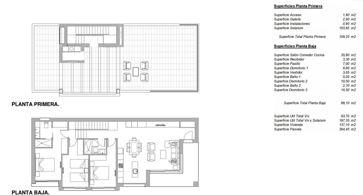
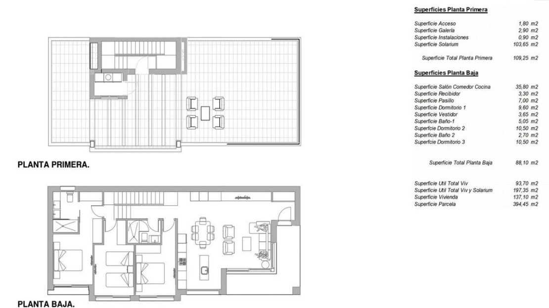
Looking for stunning views, a green oasis, a rooftop solarium, and a large piece of land for your new home? Are you ready to pay 120 thousand more for this than for an analogue without these features? Isn't it expensive? You decide. For me, this offer is highly competitive and attractive for investment, especially due to its location, neighborhood and the area itself. The built-up area will be about three hectares and will deal exclusively with single-family homes of different classes and sizes. The area is literally immersed in the vegetation of the trees, which the developers will try to preserve in order to preserve this unique feature of residential complexes. I present to you a new residential complex in the Sierra Cortina area in Finestrat, made up of 12 compact villas located on plots of about 400 square meters. The plot is undoubtedly good for a villa with three bedrooms, two bathrooms and a usable area of about 95 square meters. Also, add a hundred-meter solarium and you get a great space to live.
A password will be e-mailed to you
Use the form below to contact us!
