A password will be e-mailed to you
Charming villa located in a plot of 5900m2. This charming villa is very private with panoramic views and a private pool. The house is easy to access from a private road. Here you can enjoy the tranquillity and the beautiful nature with amazing mountain views.
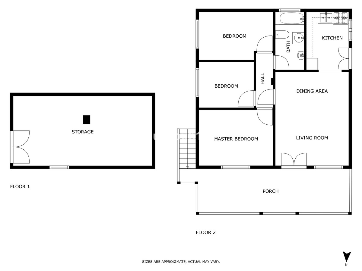
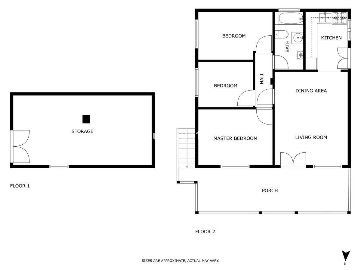
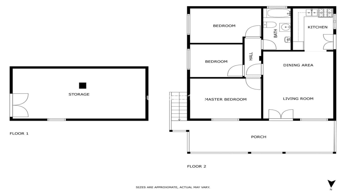
The plot has orange and olive trees. The villa has a large covered terrace where you can enjoy the views of the beautiful garden and mountains. You enter the villa by the living room. From the living room, you enter to separate sections with three good-sized bedrooms and a shared bathroom. From the kitchen you can enter the garden with a large private pool. The garden has an outdoor grill area and access to the pool.
The villa has two levels. The first level is used today as a garage and storage. It's possible to reform the first level as a living area with the same size as the second level.
The villa is located only 10 minutes from the airport and 9 km from the sea. There is also a small village nearby with all the services. You are welcome to contact us for viewings.
A password will be e-mailed to you
Use the form below to contact us!
