A password will be e-mailed to you
Discover this magnificent apartment that not only offers you comfort and design, but also the opportunity to enjoy a privileged location.
Just 5 minutes walk from the center, you will live surrounded by history, culture and urban life, together with the tranquility you need.
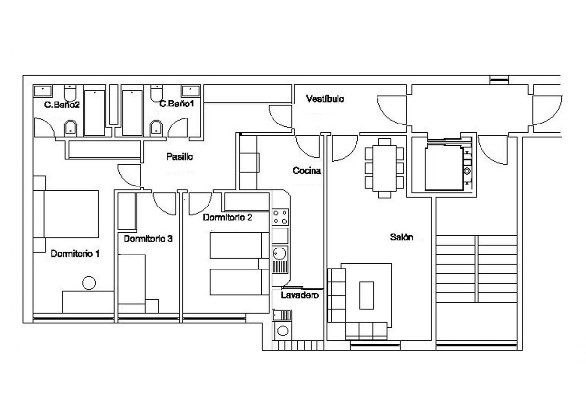
The 96 m² useful and completely exterior house has three bedrooms with built-in wardrobes, two bathrooms, the main one with an en-suite bathroom, offering comfort and privacy, a bright and cozy living room, and an independent kitchen, fully furnished with new appliances.
In addition, its double-glazed aluminum windows guarantee excellent thermal and acoustic insulation; It also has centralized air conditioning, for your comfort throughout the year.'
The garage space included in the price adds extra comfort.
You will have a multitude of shops, supermarkets, pharmacies, schools and local stores within reach, finding everything you need just a few steps from your door.
On the other hand, its proximity to the center makes it an ideal option for those who want to be close to the action without giving up the tranquility of a family environment.
Surrounded by bus stops and access to main roads, getting around the city will always be quick and easy.
The apartment is located in a closed area offering security and privacy.
Don't miss this opportunity to live in a privileged area, thanks to the perfect combination of comfort and proximity.
The Abbreviated Information Document is at your disposal.
Expenses (ITP or VAT+AJD) + notary and registration expenses. NBC
A password will be e-mailed to you
Use the form below to contact us!












































