A password will be e-mailed to you
Discover this penthouse with two bedrooms and one bathroom, located in the first phase of Los Naranjos de Marbella. Just a short walk from local supermarkets and cafés, this apartment offers easy access to the beaches, designer boutiques, and restaurants of Puerto Banús. Situated within a gated community known for its popularity among residents and tourists, the complex features beautiful gardens and several pools.
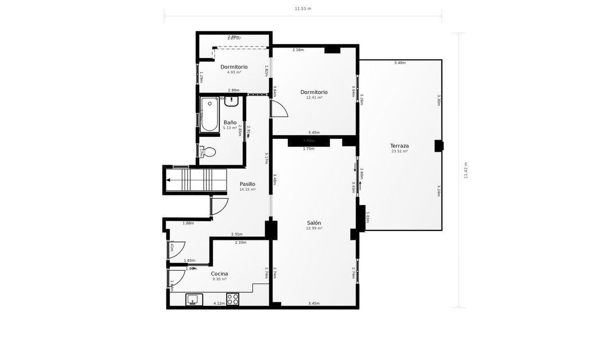
The apartment is accessed via stairs and includes an entrance hallway leading to a spacious living room with a dining area and direct access to the south-facing main terrace. The equipped kitchen includes essential appliances such as an oven, hob, washing machine, dishwasher, and fridge/freezer.
Originally, the apartment consisted of two bedrooms that were combined by the previous owner. It can be reverted to its original state with a small renovation.
On the upper floor, there is a pleasant solarium with unobstructed views of the urbanisation and the mountains. The property is set within a Mediterranean-style urbanisation with security, gardens, and communal pools.
This property is ideal for clients looking to enjoy one of the best urbanisations near Puerto Banús, with high rental potential. The urbanisation is a 10-minute walk from Puerto Banús and surrounded by renowned golf courses such as Real Club de Golf Las Brisas, Aloha Golf Club, and La Dama de Noche. The proximity to Málaga International Airport, just 63 km away, makes this property an interesting investment for non-residents in the area.
Don't miss the opportunity to live in one of the most exclusive areas of the Costa del Sol. Contact us today for more information and to schedule a visit!
In compliance with Decree 218/2005, of 11 October, which approves the Consumer Information Regulations in the sale and rental of homes in Andalusia, the client is informed that notarial, registry, and applicable taxes (ITP or VAT + AJD) and other inherent costs of the sale are not included in the price.
A password will be e-mailed to you
Use the form below to contact us!








































