For Sale

2 bedroom Apartment in Costalita

€ 380,000
Costalita, ,

Overview

Description

Description

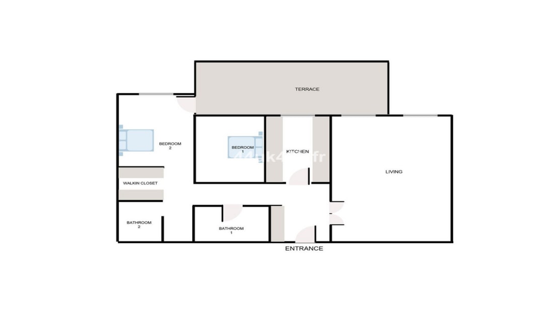
**Charming Coastal Retreat in Costalita**

Discover your dream home in the heart of the prestigious Costalita complex! This stunning 2-bedroom, 2-bathroom apartment offers a perfect blend of luxury and comfort. With a built area of 120.77 m², this property boasts a spacious open-plan living and dining area that seamlessly leads to a beautifully renovated terrace with a pergola, ideal for enjoying the breathtaking sea and mountain views. The fully equipped kitchen features a large laundry room and direct access to the terrace, making it perfect for entertaining.

Both bedrooms are bright and airy, each with its own bathroom, including an en suite in the master bedroom with a large walk-in shower and sliding glass door. The apartment comes with a parking space and a storage room, ensuring ample space for all your needs. Enjoy the serene surroundings with lush gardens, a large pool, and a tranquil pond, all within walking distance to shops and restaurants. Just 5 minutes from the sea, this is the perfect retreat you've been searching for. Priced at €380,000, this gem won't last long!

Address

Address: Costalita
City:
Area:
State/County:
Country: Spain

Property Details

Property Id: 52911
Price: € 380,000
Property Size: 220 m2
Bedrooms: 2
Bathrooms: 2
Custom ID: R4943923

Features

Other Features
Close To Sea
Gated Complex
Urbanisation

Contact Me

Schedule a showing?

Schedule a tour

Wed 15 Apr
Thu 16 Apr
Fri 17 Apr
Sat 18 Apr
Sun 19 Apr
Mon 20 Apr
Tue 21 Apr
Wed 22 Apr
Thu 23 Apr
Fri 24 Apr
In Person
Video Chat
Your information

Compare Listings

CasaEspanha