A password will be e-mailed to you
LOCATION! LOCATION! LOCATION! – BEACHFRONT BEACHSIDE APARTMENT IN CALAHONDA!
Don’t miss out on this rare chance to own a property in one of Calahonda’s most prestigious beachfront communities, where listings are few and far between!
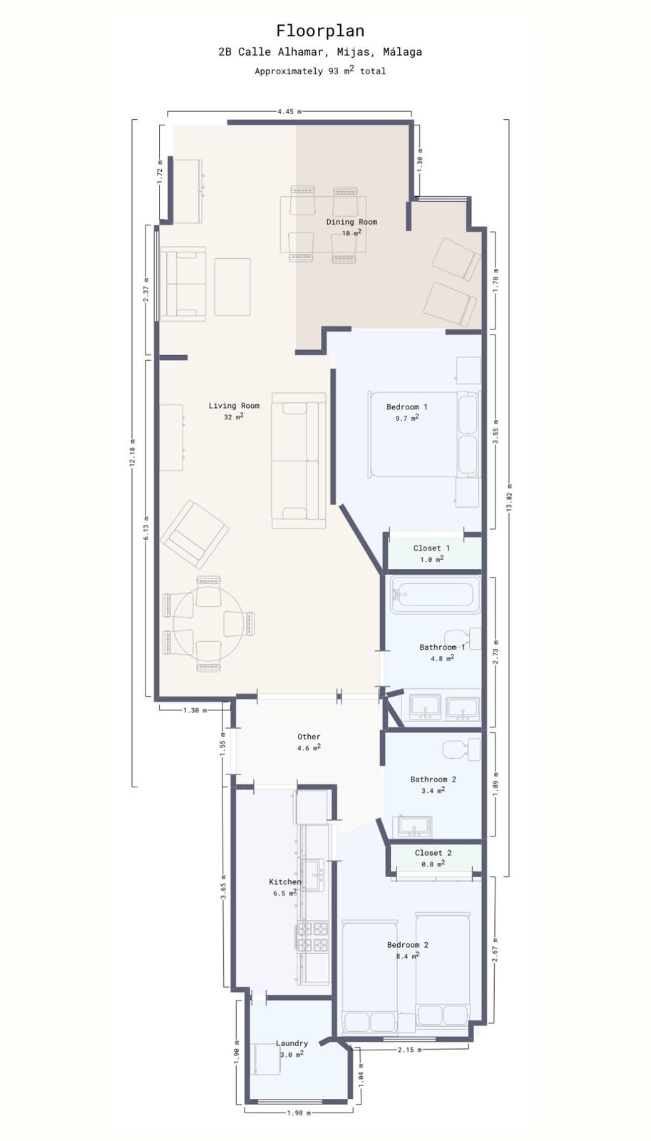
This bright and spacious 2-bedroom, 2-bathroom apartment offers breathtaking sea views and boasts a large terrace, perfect for enjoying the Mediterranean lifestyle.
Located within an exclusive complex, it features beautifully maintained green areas, multiple swimming pools, and direct access to the beach.
Small restaurant “chiringuito” within the urbanization for the summer season and for private use only for residents.
Three swimming pools, two for adults and one for infants. In addition to a play area for children, in a totally enclosed area.
Conveniently situated walking distance to shops, restaurants, and all amenities, with a bus stop nearby, this property offers unparalleled accessibility.
It also comes with private parking in a secure garage.
Previously used as a short-term holiday rental, this apartment is a proven performer in the rental market, with year-round demand in the community.
Whether you’re looking for a holiday home, a permanent residence, or an excellent investment opportunity, this is your moment to secure a gem in Calahonda!
Contact us today to arrange a viewing. Opportunities like this don’t last long!
LPO AVAILABLE
Middle Floor Apartment, Calahonda, Costa del Sol.
2 Bedrooms, 2 Bathrooms, Built 116 m², Terrace 15 m².
Setting : Beachfront, Town, Beachside, Close To Golf, Close To Port, Close To Shops, Close To Sea, Close To Schools, Close To Forest, Marina, Close To Marina, Urbanisation, Front Line Beach Complex.
Orientation : South, south west, west
Condition : Very Good.
Pool : Communal.
Climate Control : Air Conditioning, Hot A/C, Cold A/C.
Views : Sea, Beach, Garden, Pool.
Features : Covered Terrace, Lift, Fitted Wardrobes, Near Transport, Private Terrace, Satellite TV, WiFi, Utility Room, Ensuite Bathroom, Marble Flooring, Double Glazing, 24 Hour Reception.
Furniture : Fully Furnished.
Kitchen : Fully Fitted.
Garden : Communal.
Security : Gated Complex, Entry Phone.
Parking : Underground, Garage, Private.
Utilities : Electricity, Drinkable Water.
Category : Beachfront, Holiday Homes, Investment.

CasaEspanha
A password will be e-mailed to you
Use the form below to contact us!
