A password will be e-mailed to you
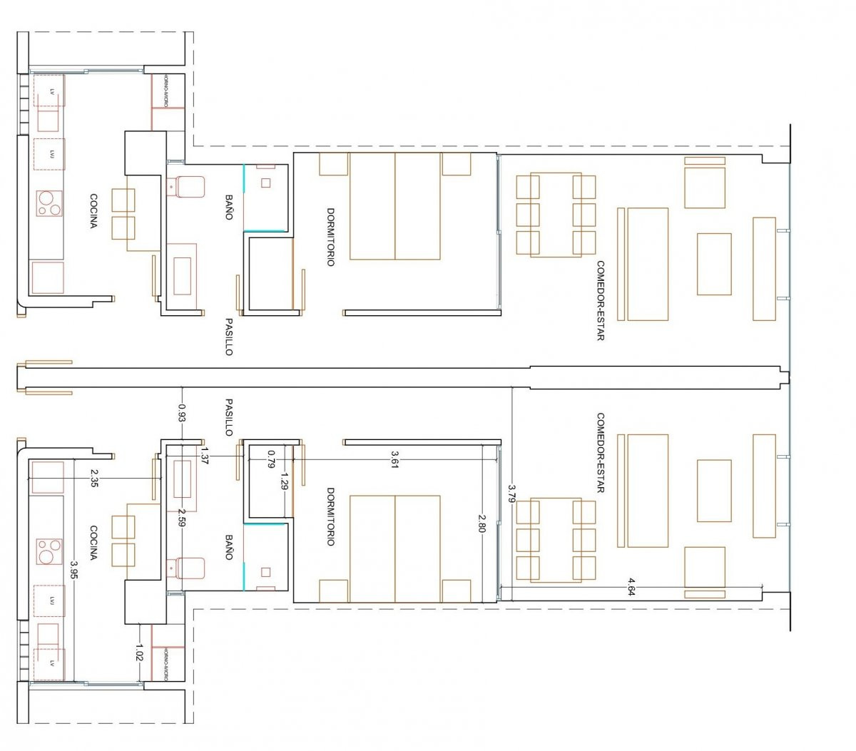
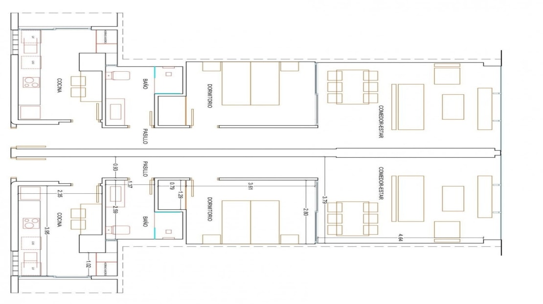
The apartment has approximately 59 m2 of constructed area, one bedroom and one bathroom, a separate kitchen and a living-dining room with spectacular sea views. This residential complex has a large communal pool — underground parking space for € 20,000 extra. The apartments are newly renovated and in perfect condition. Among its qualities include ceramic flooring, air conditioning hot and cold, fully fitted kitchen with Siemens appliances, wardrobe in the bedroom. It is possible to buy two of these apartments and combine them into one.
A password will be e-mailed to you
Use the form below to contact us!












